Terreno em Condomínio de Alto Padrão no Campo Comprido com Projeto Aprovado
CURITIBA - PR
Terreno em Condomínio de Alto Padrão no Campo Comprido com Projeto Aprovado
Terreno em Condomínio de Alto Padrão no Campo Comprido com Projeto Aprovado
Apresentamos uma excelente oportunidade para construir o imóvel dos seus sonhos!
Este lindo terreno está localizado em um condomínio fechado de alto padrão no bairro Campo Comprido, uma das regiões mais valorizadas e tranquilas da cidade. Com uma área privativa de 1.084,65 m², o lote oferece amplo espaço para projetos arquitetônicos modernos e sofisticados, garantindo conforto, privacidade e qualidade de vida.
O condomínio conta com portaria 24 horas, garantindo segurança e tranquilidade para você e sua família. Além disso, possui ruas largas e bem arborizadas, paisagismo impecável e um ambiente residencial de alto padrão.
Outro grande diferencial é a localização estratégica: próximo à Universidade Positivo e à fábrica da Volvo, proporcionando fácil acesso a importantes vias da cidade, comércios, escolas, supermercados, restaurantes e demais conveniências do dia a dia.
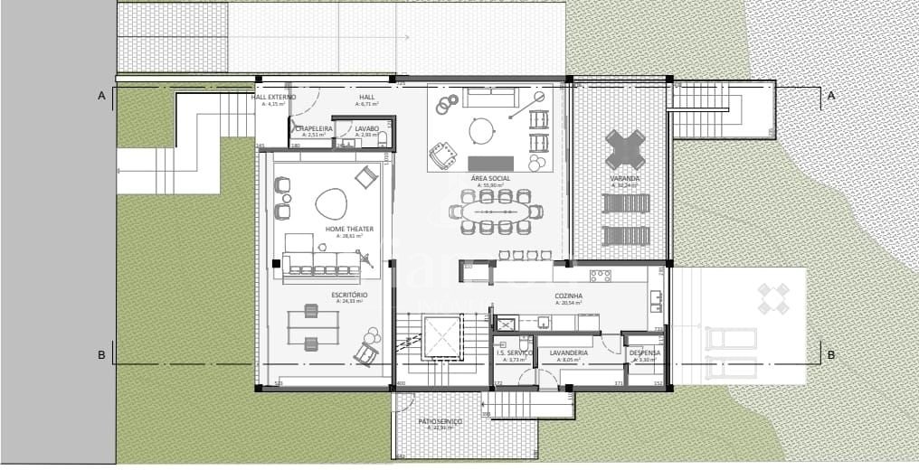
O terreno já possui projeto aprovado, facilitando o início imediato da construção e reduzindo tempo e burocracia.
Localização: Campo Comprido região nobre e tranquila
Metragem privativa: 1.084,65 m²
Segurança: Portaria 24h
Projeto aprovado: pronto para construir!
Não perca a chance de investir em uma das melhores regiões da cidade. Agende uma visita e conheça de perto este terreno exclusivo!
Esperamos que tenha gostado dessa breve descrição do imóvel à venda. Se você se interessou ou teve alguma dúvida, não hesite em entrar em contato conosco para agendar uma visita ou obter mais informações. Caso prefira atendimento via WhatsApp, basta clicar no botão verde ao lado >>>#PC
Características do Imóvel
Localização do imóvel
Confira alguns de nossos imóveis
Veja alguns dos nossos imóveis que selecionamos para você!
Nós entendemos que uma nova casa é mais do que apenas um imóvel, é a oportunidade de começar uma nova e verdadeira história. Por isso, fazemos o máximo para ajudá-lo a encontrar o lugar perfeito para você.
Encomende seu imóvel conosco!
Não espere mais! Deixe-nos encontrar seu imóvel dos sonhos.
Encomende seu imóvel


























